



















































Saint Petersburg, Florida 33712
Available From
NOW
Minimum Duration
6 Months
Utilities Included
Pest Control, Lawn Care, Pool Service
HOA Application
No
Pet Policy
Dog Friendly: Small dogs less than 35lb, 2 pets max; breed restrictions apply; subject to approval; $500 deposit & $50 monthly rent per pet; NO CATS
Rental Requirements
Minimum credit of 500; minimum income of 2x the monthly rent (voucher holders may be exempt from this requirement)
Total move in
$15,065
First Month's Rent
$7,500
Security Deposit
Move-in fees
$65
Monthly fees
$0
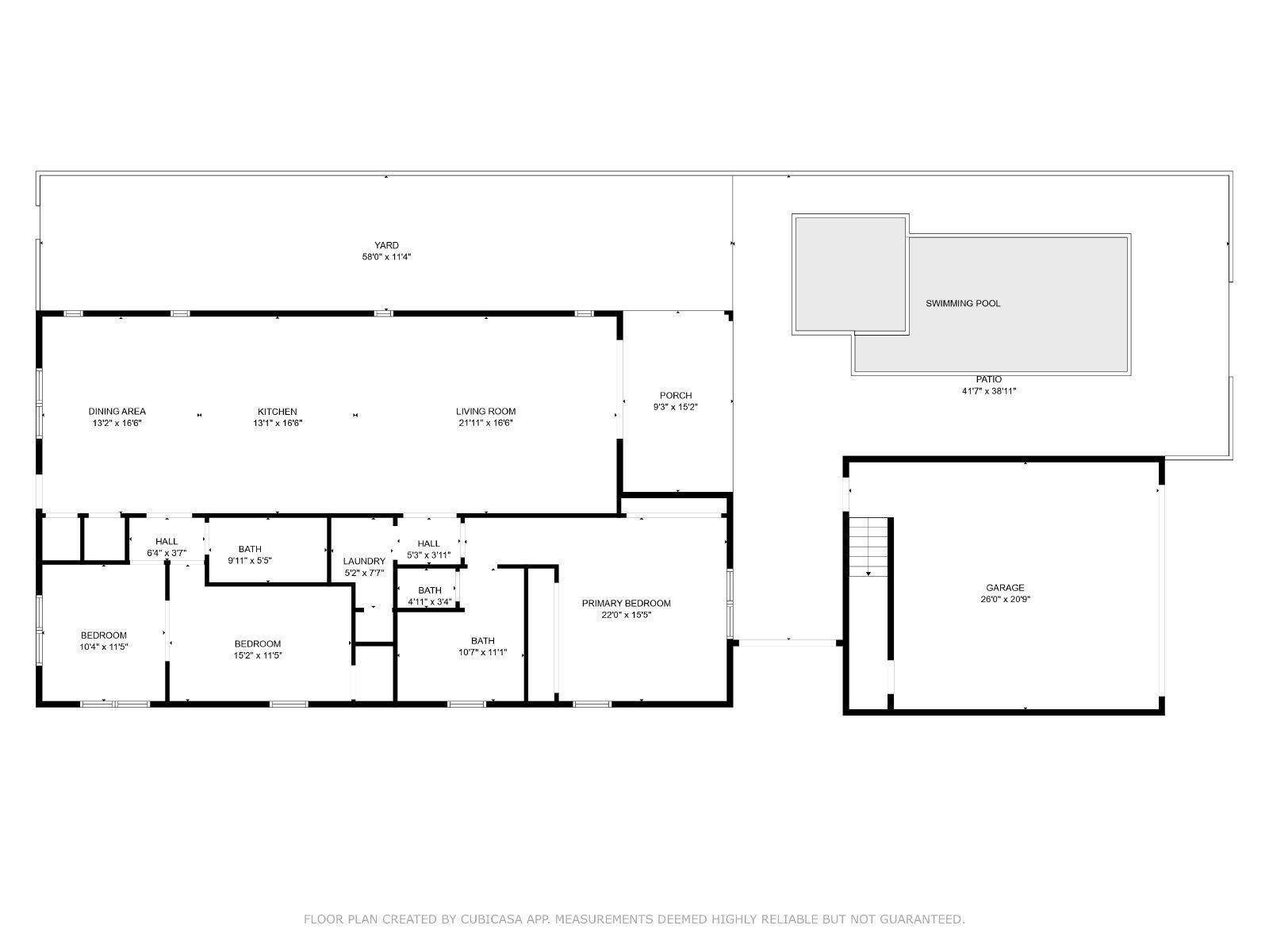
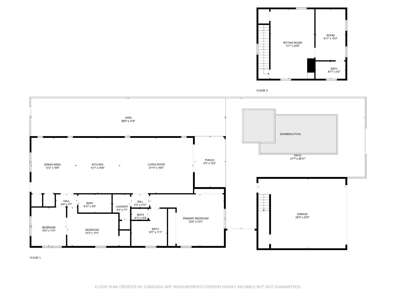
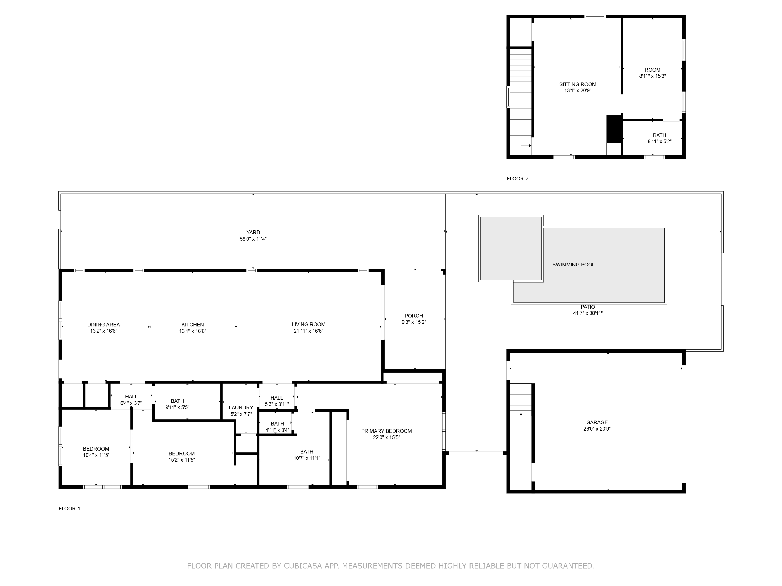
Welcome to your private, newly built designer-curated home in the heart of Downtown St. Petersburg! Experience the excitement of city living in this private luxury urban oasis, with walkable access to restaurants, breweries, art galleries, & more! This solid block construction, 2-car garage pool home is a true hurricane fortress, featuring impact windows & doors plus a whole-house Generac generator. Just mins from the beaches, yet high & dry with no flood insurance required. Situated on a charming brick-lined street, just steps from the vibrant Grand Central District. Enjoy a 3 bed–2 bath main house plus a 1 bed–1 bath carriage apartment above the garage, all with upscale finishes & Smart Home Features! The striking curb appeal blends contemporary architecture with a tropical aesthetic. Take the walkway to a dramatic portico, where a statement entry door invites you inside. Clean geometric lines, sleek surfaces, & intuitive use of light create an environment with the versatility of a serene retreat or an exciting hosting space. The formal dining room with dry bar flows into a bright, open layout featuring a gourmet chef’s kitchen with sleek Scandinavian-style cabinetry, shining quartz countertops, & luxury appliances including a 6-Burner Thor gas range. A large breakfast bar overlooks the expansive living area with clerestory windows, vaulted ceilings & views of the pool. The large windows, airy volume ceilings, & a strategic use of natural light give the entire home a bright, gallery-like feel. A king-sized primary suite features dual closets & a spa-inspired bath with a double vanity, designer tiling, & a contemporary shower room with a frameless glass wall. The 2nd & 3rd bedrooms are thoughtfully designed with roomy closets, gorgeous built-ins, 10-foot ceilings, & optional connectivity doors. Nearby, the hall bath is fitted with posh, modern finishes. Other highlights include a large laundry room with storage space, & whole house RO water filtration & softener. Luxury does not end here. Sliding doors open to your back yard paradise - creating effortless indoor–outdoor living & an ideal backdrop for gatherings. Enjoy brunch in the pavered courtyard by your stunning heated in-ground pool & spa with Pentair control system, relax under the covered lanai or enjoy the FL sunshine on the pool deck. A tall privacy wall makes this space your own & a grassy side lawn & mature landscaping give the best resort vibes. Evening ambiance is enhanced by soft, resort-style perimeter lighting that transforms the courtyard into a private moody oasis after sunset. A detached 2-car garage off the courtyard provides additional storage, alley access, & an interior staircase leads you up to a spacious apartment. This carriage house offers the perfect flexibility for guests, family, or a dedicated work-from-home suite, & provides potential income opportunities. It offers a large living room with plumbing in place for a kitchenette, & a spacious bedroom with full bath. This home places you in one of St. Pete’s most vibrant & progressive neighborhoods, surrounded by award-winning shops & dining, just mins from Beaches, St. Pete Pier, EDGE District & Grand Central. Set near the edge of the Warehouse Arts District, the home is immersed in creative energy, with colorful murals, working studios, & galleries nearby. Homes of this caliber combining new construction, modern design, & a premier walkable location are an incredibly rare find in downtown St. Petersburg! By submitting your information on this page you consent to being contacted by the Property Manager and RentEngine via SMS, phone, or email.
Asset Management Real Estate, Inc.
1 Rental requirements and application decisions comply with Fair Housing & Equal Opportunity regulation and local housing laws
2 Move-in fees are subject to change without notice and will be calculated by the PM prior to signing the lease.
3 All information provided is deemed reliable but is not guaranteed and should be independently verified. Property details, availability, pricing, and terms are subject to change without notice.
4 RentEngine is a leasing platform, not a brokerage. No representations or warranties are provided of any kind.