




























































Cataldo, Idaho 83810
Available From
NOW
Minimum Duration
12 Months
Utilities Included
None
HOA Application
No
Pet Policy
Dog Friendly: Varies
Rental Requirements
Minimum credit of 580; minimum income of 2.5x the monthly rent (voucher holders may be exempt from this requirement)
Total move in
$6,055
First Month's Rent
$3,000
Security Deposit
Move-in fees
$0
Monthly fees
$55
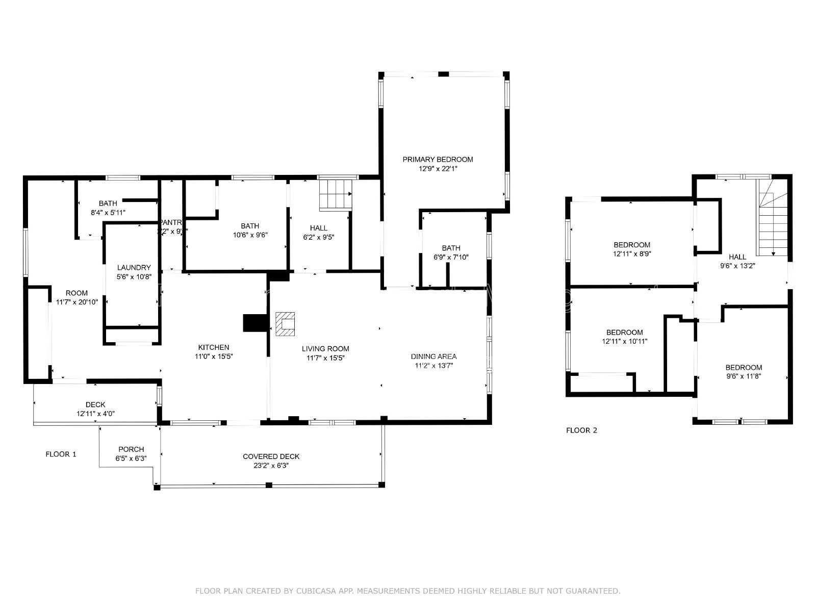
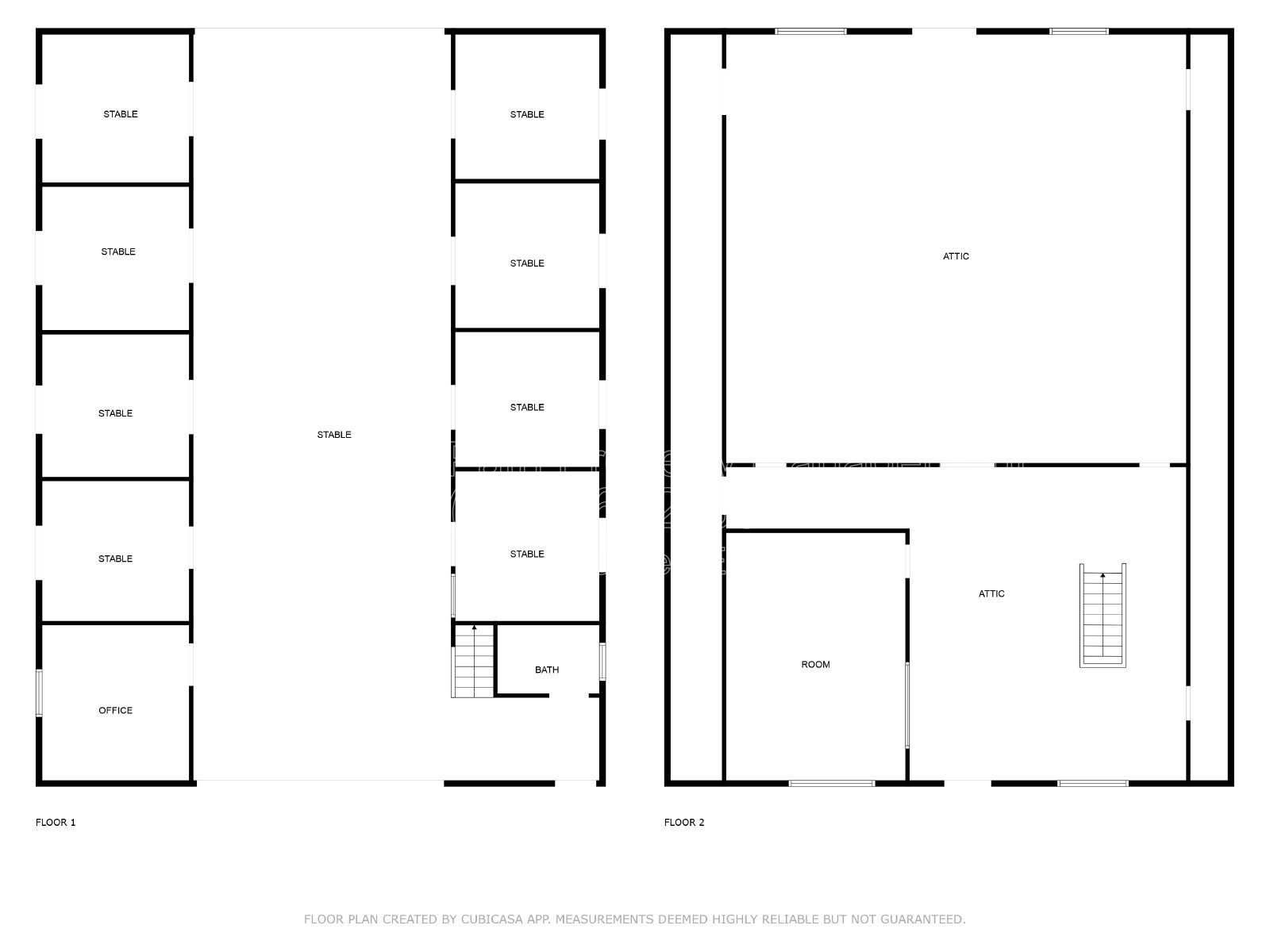
Welcome to this incredible equestrian and ranching estate located at 17778 E Canary Creek Rd in the heart of beautiful Cataldo. Situated on over 50 sprawling acres, this property offers a rare opportunity for those seeking a working ranch, a private retreat, or a premier location for livestock just 3 minutes from the Killarney Lake boat launch. Inside, you’ll find a spacious 1,876 sq ft layout featuring 4 bedrooms and 3 bathrooms. The home offers a functional and comfortable living environment designed to take advantage of the stunning surrounding views, providing a cozy atmosphere to return to after a day out on the ranch. The property is a true dream for horse and cattle enthusiasts. The base rental includes the residence and acreage; however, for those requiring professional-grade facilities, the 8-stall horse barn, massive shop, and 4-car garage are available for an additional $1,000 per month. The entire perimeter is secured with white PVC fencing, ensuring a safe and professional setup for your animals. Step outside to explore the vast grounds, which include a hill offering panoramic views of the lake and mountains. Whether you are enjoying the privacy of the Idaho landscape or utilizing the extensive outbuildings, this property provides an unparalleled outdoor lifestyle. Situated in Cataldo, this home provides easy access to world-class outdoor recreation, including boating, fishing, and trail riding, while remaining within reach of the surrounding Silver Valley communities. Please note: The guest house is excluded from the rental. This is a no-cat property, though up to 3 dogs are welcome. Please call to inquire regarding additional monthly fees and deposits for livestock and pets. Some aesthetics in the home may have changed since the marketing photos were taken. Water, Sewer, and Garbage will be billed as an additional monthly line item on top of the rent. Ask about our Security Deposit Waiver Program for Qualified Applicants. Property Highlights 4 Bedrooms | 3 Bathrooms 1,876 Sq Ft * 50+ Private Acres 8-Stall Horse Barn (Available for addt'l $1,000/mo) 4-Car Garage White PVC Fencing (Perfect for Horses or Cattle) 3 Dogs Max | No Cats Call for Livestock Deposit & Monthly Fee Details Guest House Not Included with Rental Water / Sewer / Garbage billed monthly All Freedom Path Property Management residents are enrolled in the Resident Benefits Package (RBP) for $55.00/month, which includes liability insurance, credit building to help boost your credit score with timely rent payments, up to $1M Identity Theft Protection, HVAC air filter delivery (for applicable properties), move-in concierge service for utility and home service setup, our best-in-class resident rewards program, on-demand pest control, and more. Full details provided upon application. Listing information is believed to be accurate but is not guaranteed. Details may come from owner disclosures, public records, or previous listings, and landscaping, appliances, or interior/exterior features may have changed since photos were taken. Availability, price, and terms may change without notice. Applicants are encouraged to verify all information. By submitting your information on this page you consent to being contacted by the Property Manager and RentEngine via SMS, phone, or email.
Freedom Path Property Management
1 Rental requirements and application decisions comply with Fair Housing & Equal Opportunity regulation and local housing laws
2 Move-in fees are subject to change without notice and will be calculated by the PM prior to signing the lease.
3 All information provided is deemed reliable but is not guaranteed and should be independently verified. Property details, availability, pricing, and terms are subject to change without notice.
4 RentEngine is a leasing platform, not a brokerage. No representations or warranties are provided of any kind.